I love density, I love row houses, but I'm going to go on a little rant about how we develop these in Seattle. A thread 1/8
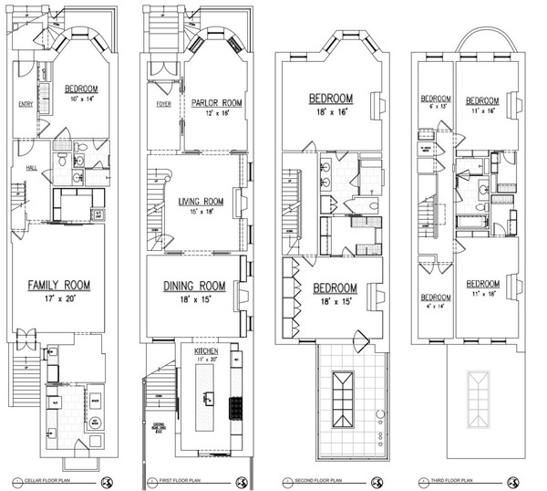
First off, this is a positive solution on paper. One home gone, replaced by 5. They are all family sized with 1500 square feet, 3 bedrooms, 3 bathrooms. But my issue isn't with any of that, it's how they are divided up 2/8
Every one of these floors in all five units has to lose out on a ton of space to incorporate the same stair each of them needs. It's so dominating on the unit it even meets you at the front door 3/8
You can't fit much of anything in them without feeling squeezed. Because we have to carry a 5' wide stair allllll the way up. This consumes space that could otherwise be useful for more living space. 4/8
Imagine a little toddler or waddler or baby crawling around here? I can't even imagine the anxiety for a parent. But as 3 bedroom units, who else would these be built for if not for families? 5/8
I was so perplexed by how narrow these are compared to Brooklyn brownstones. These old homes (seen in many cities around the world) are just much more roomy. Why is that? I will tell you why next 6/8
Because of cars and shitty car storage design. Because the footprint can't be long and narrow, it can only be short and narrow. Brownstones allow living rooms to spread out & have the stair break up spaces like the kitchen or front parlor room because they don't have parking 7/8
Seattle requires on-site parking for any lot outside of an urban village. Because we are so poorly planned nobody can live without a car.

If we are going to have narrow row homes, remove parking requirements and allow us to ELONGATE them! /end
One more thing. If we are going to try to create 5 or 6 units on a building of this size, we need shared stairs like they used to build in 6 plexes. That way we consolidate vertical use and let these homes live on a single level.
You can follow @pushtheneedle.
Tip: mention @twtextapp on a Twitter thread with the keyword “unroll” to get a link to it.

Latest Threads Unrolled:

By continuing to use the site, you are consenting to the use of cookies as explained in our Cookie Policy to improve your experience.